Neues Zuhause Mausbach
Veröffentlicht: Mittwoch, 25.06.2025 12:53
Die Stadt Freudenberg bietet im Ortsteil Mausbach erschlossene und sofort bebaubare Grundstücke zum Kauf an.

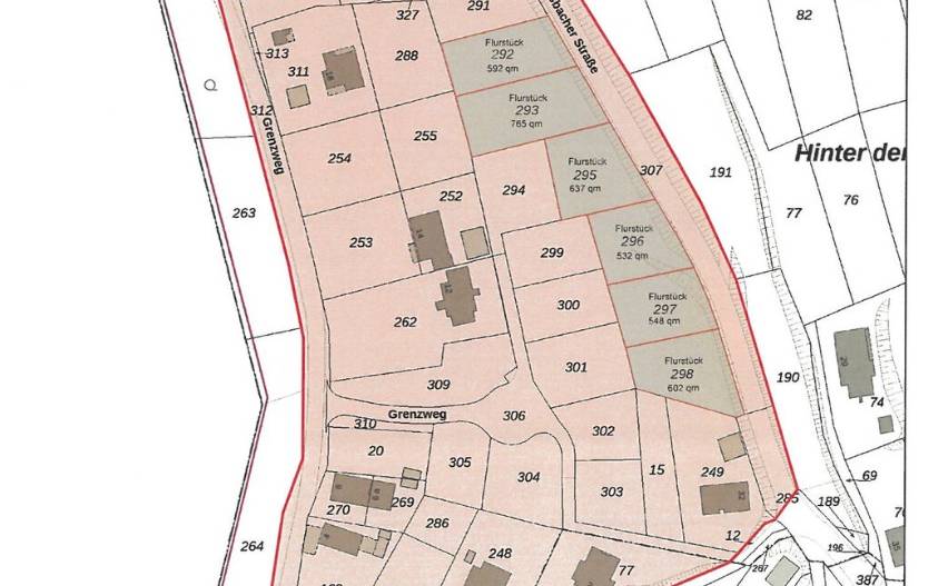
Die Stadt Freudenberg bietet im Stadtteil Mausbach an der Mausbacher Straße sechs Baugrundstücke zum Verkauf an. Die Grundstücksgrößen liegen zwischen 532 und 765 Quadratmetern, der Preis beträgt 110 Euro pro Quadratmeter. Alle Grundstücke sind bereits erschlossen und können sofort bebaut werden. Die Vergabe erfolgt nach klaren Kriterien, die der Haupt- und Finanzausschuss festgelegt hat. Dabei werden die persönliche Haushaltssituation, das soziale und ehrenamtliche Engagement sowie der Bezug zum Wohnort berücksichtigt.


